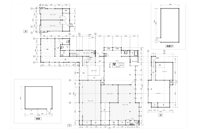
築100年を迎える趣ある古民家。
自然に囲まれた落ち着いた環境でありながら、車を少し走らせれば市街地へアクセスでき、生活の利便性も兼ね備えています。

母屋を大部分リフォーム済みで、水回りも含めて綺麗な状態を維持されています。
1階北角のエリアはリフォームが施されていないため、柱と床が傾いている状況ですが、そのエリアを修繕すれば構造的にも美観的にも安定した建物になります。

ゆったりとした敷地を有し、複数台の駐車スペースも確保可能。
居住用はもちろん、事業用としてなど、幅広い活用が可能な物件です。

ぜひお問合せお待ちしております。