※この古民家は現在商談中です。

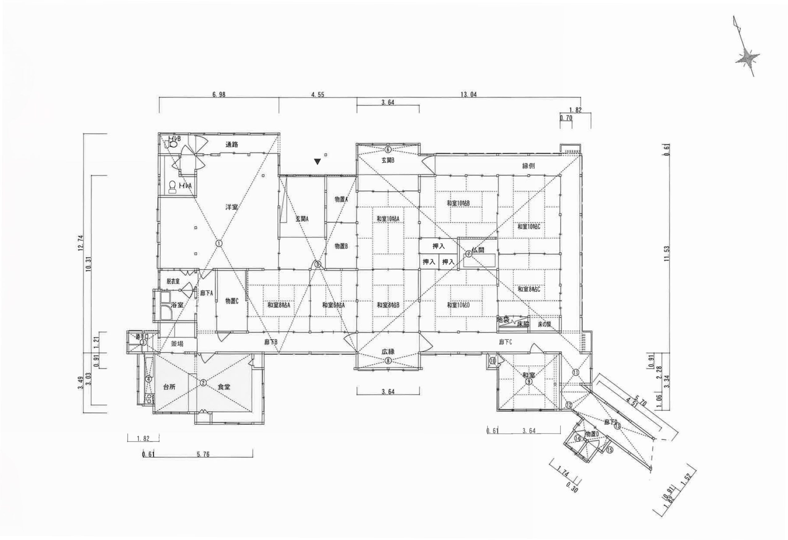
新潟県五泉市阿弥陀瀬の小高い山麓に佇む、敷地1300坪を超える明治35年築の大邸宅古民家です。
新潟で鑑定を行った物件としては史上最大級の規模です。
茅葺母屋は板金でカバーリングされた屋根で、雨漏れは現状ございません。
空き家になりだいぶ月日が経ちますので、室内は修繕が必要で、水回りも全改修を要します。
修繕コストとして、水回りを始め内装等含めると、およそ500万円以上は最低限見込む必要があります。

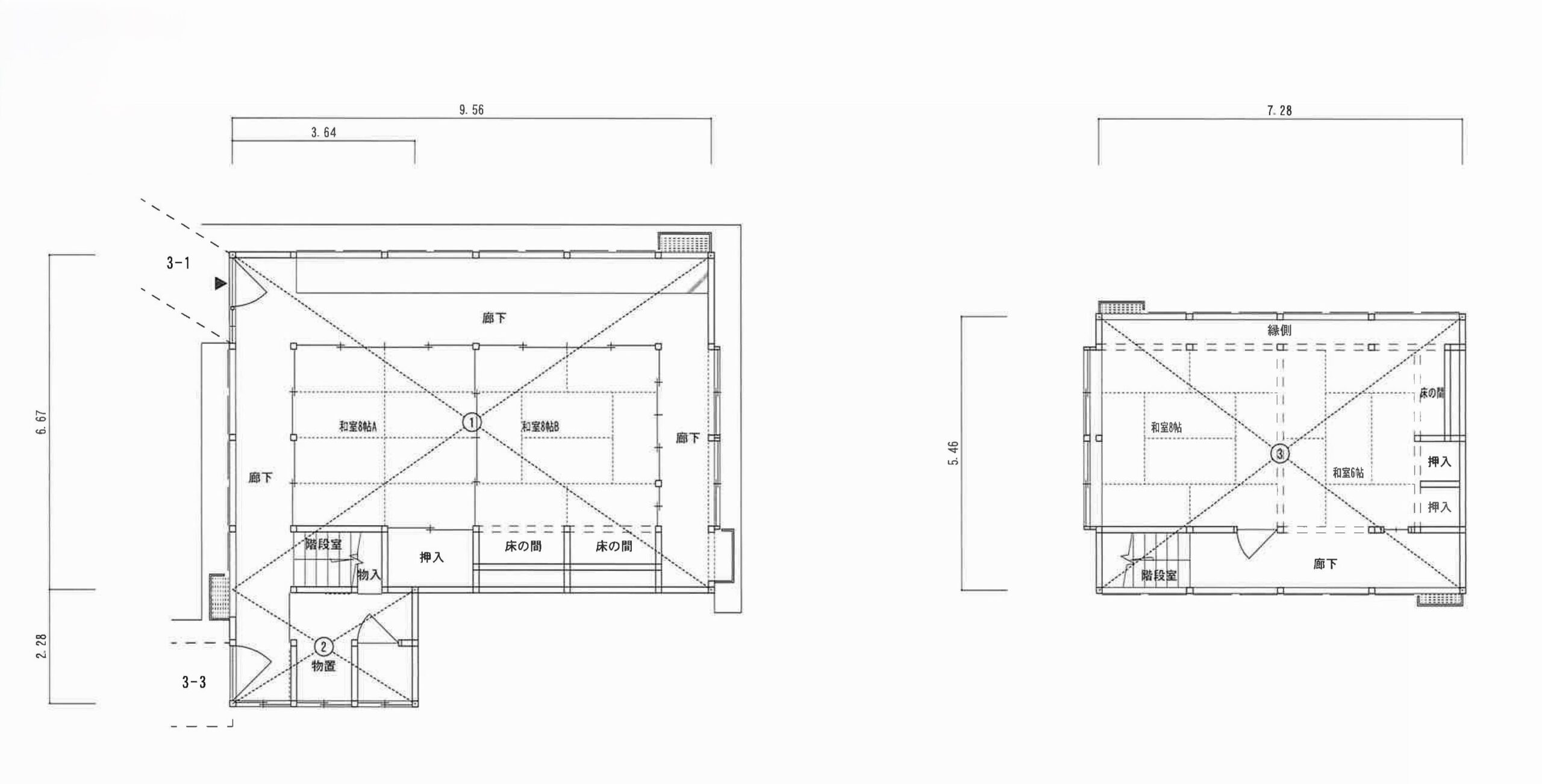
建物奥に続く増築エリアは二階建てとなり、純和風デザインとして魅力を感じます。
また、蔵を取り込んだ間取りでもあり、アイディア次第で利活用が広がります。

敷地は広く、車は数台止められますので駐車に関しては安心です。

およそ1mを超える雪深いエリアで、四季折々の暮らしを愉しむことが出来ます。

隣家にお蕎麦屋がありますが、商業エリアへはだいぶ距離がありますので、生活の利便性は良くありません。


評価額(令和7年度)
土地(宅地部分):11,033,767円(固定資産税 50,332円)
母屋(増築部含む):1,018,606円 (固定資産税 14,259円)
土蔵:117,786円  (固定資産税 1,649円)
※その他山林がございます。
Googleマップ:https://maps.app.goo.gl/RNWkTDH9kLqQUF5i8

他写真はこちらからご覧になれます→https://www.seishinhouse.com/estate/slug-f5841d7a5749b6f6c2b39e2baef5585a